C301
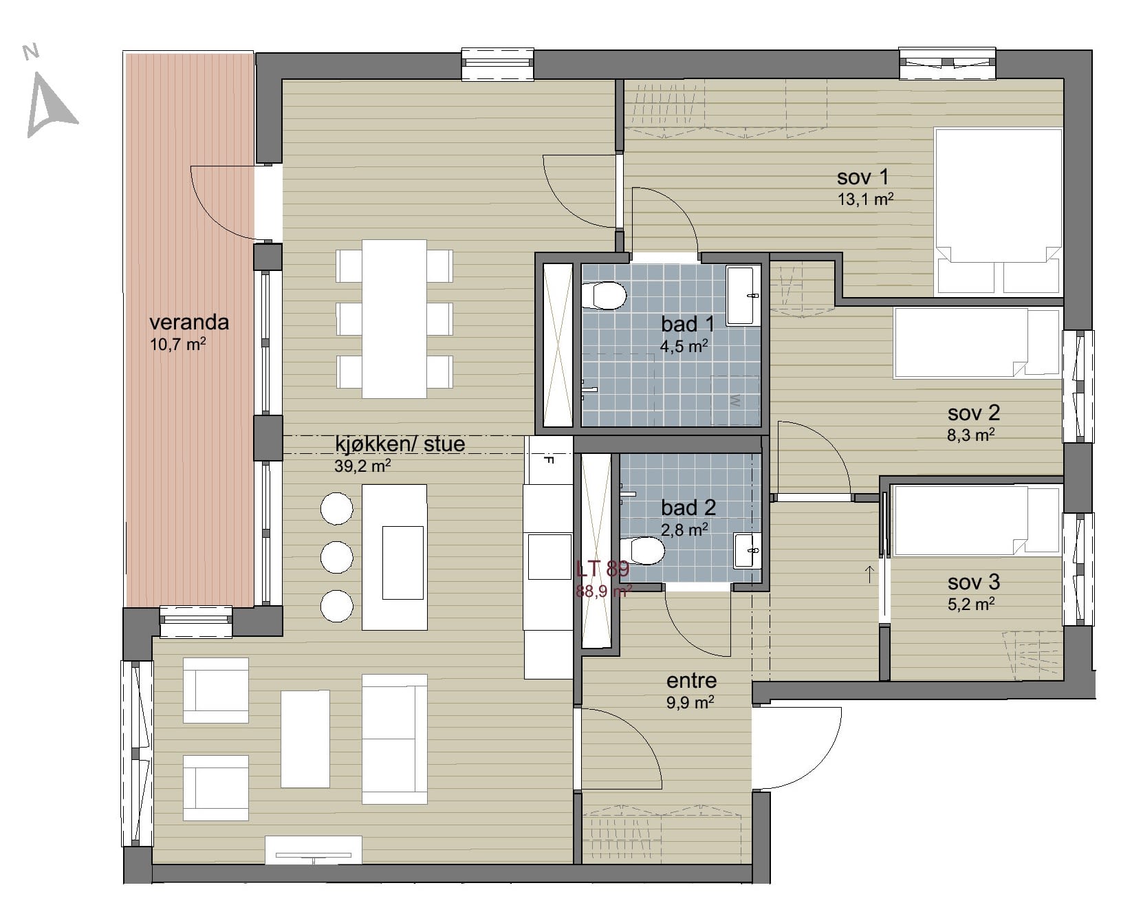
4-roms leiligheten har ekstra god takhøyde i stuen/kjøkken. Fra 3,4 til 4,8 meter. Ta kontakt med megler for mer info.
Leil.nr.
C301
Etasje
3
Soverom
3
BRA-i m²
88,9
BRA-e m²
5
BRA m²
93,9
Pris
8 200 000
Totalpris
8 241 390
Status
Ledig
Kontakt megler
Ingen meglere er lagt inn
